Click here to go to the NNJ homepage

Figures for Jin-Ho Park's
Analysis and Synthesis in Architectural Designs:
A Study in Symmetry

| Fig. 1 | Fig. 2 | Fig. 3 | Fig. 4 | Fig. 5 | Fig. 6 | Fig. 7 | Fig. 8 | Fig. 9 | Fig. 10 | Fig. 11a | Fig. 12 |

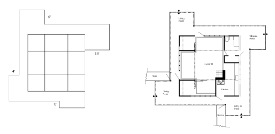
Figure 7. On the left, the basic parti with the pinwheel type of C4 symmetry; on the right, the initial scheme for the cabin, dated on July 1922. | back to text |

 

Fig. 7 for Jin-Ho Park

 

 

| Top of Page |