Click here to go to the NNJ homepage

Figures for Han Vandevyvere's
GOTHIC TOWN HALLS IN AND AROUND FLANDERS, 1350-1550:
A GEOMETRICAL ANALYSIS

| Fig. 1-3 | Fig. 4 | Fig. 5 | Fig. 6 | Fig. 7a | Fig. 7b | Fig. 8 | Fig. 9a | Fig. 9b | Fig. 10ab | Fig. 10c |
| Fig. 11 | Fig. 12 | Fig. 13ab | Fig. 13c | Fig. 14 | Fig. 15ab | Fig. 15cd | Fig. 16 | Fig. 17ab | Fig. 17cd | Fig. 18 | Fig. 19ab | Fig. 20 |

Figure 10a (left). Town Hall at Oudenaarde; analysis of west facade.
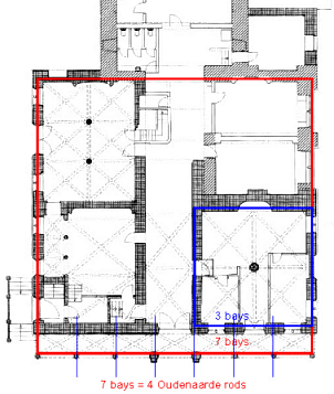
Figure 10b (right). Town Hall at Oudenaarde; analysis of ground level plan. | back to text |

 Figure 10a for Vandevyvere

 Figure 10b for Vandevyvere

| Top of Page |