Abstract. Rachel Fletcher examines Palladio's Villa Emo, reviewing the sources for harmonic proportions in architecture from Vitruvius to Alberti, and discussing both the rational proportions found in the plan of the villa published in the Quattro Libri as well as the incommensurable Golden Mean.

Click here to go to the NNJ homepage

Golden Proportions in a Great House: Palladio's Villa Emo

Rachel Fletcher
113 Division St.
Great Barrington, MA 01230 USA

Among the great houses of the Renaissance is Palladio's Villa Emo at Fanzolo in Northern Italy, built in the 1550s to realize Lunardo Emo's dream of a family seat in the country. Palladio's methods of harmonizing buildings organically with their physical surroundings borrow from rural traditions and local farm customs. The massive south-facing entry ramp in front, for example, serves as a threshing floor, where grain may be spread in the sun to dry. Palladio adopted a number of classical rules of building recorded in the ten books of De architectura by the Latin theorist Vitruvius, well known for applying mathematical proportion to a building's measures and equally adept at achieving harmony in more pragmatic and natural ways.

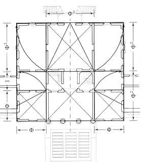
Beyond vernacular methods of achieving harmony by integrating buildings with the natural landscape, harmony appears mathematically in the villa's dimensions. Measuring the rooms of the central block in Vicentine feet, Palladio used a 27-foot square for the central hall, with additional rooms of 12 x 16, 12 x 27, 16 x 16, and 16 x 27 framing the hall and the portico (16 x 27). Meanwhile, various chambers in the wings include measures of 12, 24, and 48.

Scholars such as Rudolf Wittkower have identified the numbers 12, 16, 24, 27, and 48 as the terms of musical harmonies. During the Renaissance, Alberti, reviving ancient theories of Vitruvius, Plato, and the Pythagoreans, translated these numbers of musical consonance into spatial ratios and proportions. The ratios became architectural rules for orchestrating a building's individual measures and harmonizing the parts with the whole.

The appearance of musical ratios at Villa Emo reflects the Renaissance quest for order in structure and harmony in measure.

Meanwhile, Golden Mean proportions also appear in the Villa Emo, whose measured drawings suggest that Palladio employed mathematical proportions through a consistent application of geometric techniques. The Golden Ratio prevails throughout the elevation and plan, appearing repeatedly in the building's measures, from the overall proportions of the central block to the placement of individual windows and doors.

A geometric analysis based on the 1972 survey of Villa Emo by Mario Zocconi and Andrzej Pereswiet Soltan reveals that the plan of the central block is not perfectly square, but proportioned to a circle that inscribes two smaller squares. Subsequent room dimensions follow in Golden Mean progression. The placement of doors and windows derives from a regular pentagon whose base is drawn on the front edge of the portico. While proportions derived from other geometric shapes are also present, the Golden Mean appears to dominate the front elevation of Villa Emo. Double squares mark the height of the flanking walls. The diagonals of the double squares situate the endpoints of the hip of the roof in Golden Mean proportion.

ILLUSTRATION: Room dimensions in Palladio's Villa Emo are in Golden Mean ratio. The system of dividing a Golden Rectangle into a square and a smaller Golden Rectangle is evident.

ABOUT THE AUTHOR
Rachel Fletcher
is a theatre designer and geometer living in Massachusetts, with degrees from Hofstra University, SUNY Albany and Humboldt State University. She is the creator/curator of two museum exhibits on geometry, "Infinite Measure" and "Design By Nature". She is the co-curator of the exhibit "Harmony by Design: The Golden Mean" and author of its exhibition catalog. In conjunction with these exhibits, which have traveled to Chicago, Washington, and New York, she teaches geometry and proportion to design practitioners. She is an adjunct professor at the New York School of Interior Design. Her essays have appeared in numerous books and journals, including "Design Spirit", "Parabola", and "The Power of Place". Her design/consulting credits include the outdoor mainstage for Shakespeare & Co. in Lenox, Massachusetts and the Marston Balch Theatre at Tufts University.

 The correct citation for this article is:
Rachel Fletcher, "Golden Proportions in a Great House: Palladio's Villa Emo", pp. 73-85 in Nexus III: Architecture and Mathematics, ed. Kim Williams, Pisa: Pacini Editore, 2000. http://www.nexusjournal.com/conferences/N2000-Fletcher.html

 previous abstract

 top of page

 next abstract

NNJ is an Amazon.com Associate

NNJ Homepage

 Conference Abstracts Index 

Search the NNJ

About the Author

Comment on this article

Search the NNJ

Order books!

Research Articles

The Geometer's Angle

Didactics

Book Reviews

Conference and Exhibit Reports

Readers' Queries

The Virtual Library

Submission Guidelines

Editorial Board

Top of Page